Beschrijving

Altijd al gedroomd van een fantastisch vrij uitzicht? Hier, aan de rand van de ecologische zone 'De Dongevallei', staat deze sfeervolle "eilandwoning". Je profiteert van een riante tuin, tussen uw carport en garage/berging, en aan de woonkamer-zijde geniet je iedere dag van de extra tuin een groot terras; hier heb je een uniek uitzicht op de grazende Schotse Hooglanders in het natuurgebied. Zeg nu zelf.. waar vind je de luxe van 2 heerlijke tuinen bij jouw woning?

Architectuur
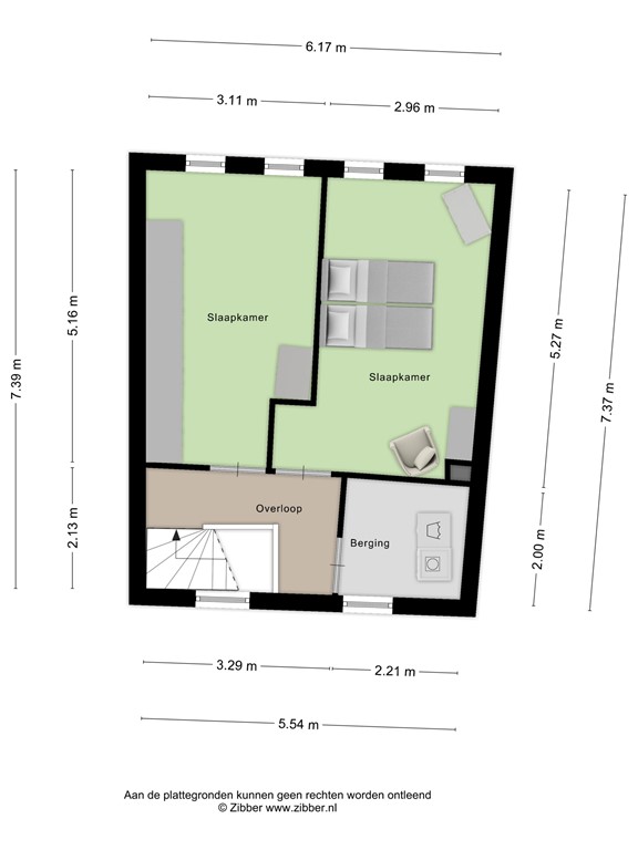
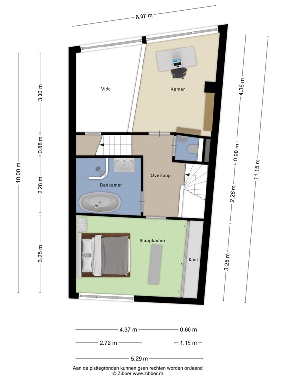
Deze woning is gebouwd met met aandacht voor detail en ruimtelijke beleving. De vide in de woonkamer en grote raampartijen geven een prachtig ruimtelijk effect. Deze detaillering vind je ook terug bij de bovenste, 2e verdieping; 2 grote slaapkamers hier bieden een geweldige hoogte; ideaal voor een niet alledaagse inrichting en verlichting.
Bijzonder fraai is de achtergevel (zijde natuurgebied) die is afgewerkt met onderhoudsvrije "Western Red Cedar". Deze gevelbekleding is duurzaam, weersbestendig en -door de jaren heen- behoudt het diens natuurlijke uitstraling.

Wat biedt deze woning qua binnenruimte
- de moderne keuken is gesitueerd aan de omheinde grote tuin; daarmee ben je verzekerd van een fijn uitzicht
- de woonkamer kenmerkt zich door een hoogte-beleving met heel veel lichtinval. Toch is de woonkamer intiem qua opzet zodat je hier echt kan 'cocoonen'. En ja, er is stadsverwarming aanwezig, maar geniet je ook van een open haard.
- op de eerste en tweede verdieping heb je drie grote slaapkamers en een unieke 'vide'-kamer met een parel van een panoramisch uitzicht. Met dit aantal van 4 kamers heb je letterlijk alle ruimte voor jouw gezin en voldoende werkruimte
- er is een complete badkamer aanwezig met zowel een ligbad als douche
- handig is dat er 2 separate toiletruimten zijn, zowel bij de entree van begane grond als op de eerste verdieping bij de overloopruimte
- daarnaast is ook een aparte was-/bergruimte op de bovenste verdieping

Buitenruimte
Uniek is dat hier 2 fijne tuinen zijn; 
- een riante tuin tussen de garage/berging en de woning, en;
- een prachtige privacy-biedende tuin met uitzicht over het ecologische natuurgebied.
Ook aan parkeergelegenheid is gedacht:
- heb je de wens voor elektrisch rijden? Hier kan het! Parkeren doe je namelijk hier gewoon op je eigen terrein, direct onder de (open) carport. 
- de garage is perfect als bergruimte of stalling van bijvoorbeeld motor of scooter.

Energiezuinig
Met een energielabel A ben je verzekerd van een hoge isolatie en daarmee laag energieverbruik.

Locatie
Deze woning ligt in de gewilde woonwijk "Leeuwerik"; deze wijk wordt gekenmerkt door rust en ruimte. Er is geen doorgaand verkeer en het Wilhelminakanaal ligt op loopafstand. In de nabije omgeving heb je veel speeltuinen, (basis)scholen, sportvoorzieningen, winkelcentra 'Heyhoef' en 'De Vallei' en het NS station.
Deze woning wordt ook wel eens 'eilandwoning' genoemd. Dit komt omdat deze woning deel uitmaakt van het project 'De 7 eilanden'. Deze woningen staan bekend om hun rust, ruimte, privacy en groene omgeving.
Je hebt hier uitzicht op natuurgebied "De Dongevallei"; een landschap dat wordt gevormd door het karakter van een natuurlijk beekdal in een stedelijke omgeving. Met daarin onder meer het riviertje de Donge, Schotse Hooglanders en vele vogelsoorten. Verder heb je een snelle ontsluiting met omliggende dorpen en het centrum van Tilburg.
Meer weten over de Dongevallei? Meer informatie vind je op de website https://www.infointilburg.com/nl/locatie/de-dongevallei. Er is zelfs een actieve natuurvereniging; https://tilburg.knnv.nl/werkgroep-dongevallei-2/
De Dongevallei is niet voor niets een '013 Geluksplek' van Tilburg!

Zoek jij een woning die behalve prachtige ruimten ook een zeldzaam woongenot met volop licht, ruimte en natuur om je heen brengt? Bekijk snel al het beeldmateriaal en maak de afspraak voor bezichtiging. Wij heten u van harte welkom!

Kenmerken