Beschrijving

Hoekwoning op riant perceel (386 m2!) met vrijstaande garage (voormalige werkplaats) en zéér diepe tuin met aan achterzijde extra garage/berging en achter-inrit. Gelegen in het oude gedeelte van Tilburg-Noord, aan markante Leharstraat (met beschermd stadsgezicht), op loopafstand van winkelcentrum 'Wagnerplein'. De woning beschikt o.a. over een woonkamer, separate keuken, bijkeuken, toiletruimte en badkamer met douche. Boven treft u de overloop en 2 ruime (slaap)kamers aan. Buiten ligt de eigen oprit met volop stallingsruimte en bijzonder diepe achtertuin met gunstige zonligging (zuid-westen) N.B.: de woning en bijgebouwen zijn relatief eenvoudig uitgevoerd en behoeven modernisering c.q. renovatie. De vraagprijs (c.q. richtprijs) is hierop afgestemd. Een bouwtechnisch inspectierapport is op aanvraag ter inzage.

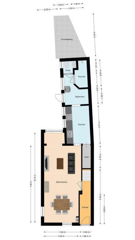
INDELING:

Begane grond:
- entree/gang met tegel-lambrisering met trapopgang naar de 1e verdieping
- woonkamer met schouw + (sier)haard, meterkast
- separate keuken met opstelling keukeninrichting met r.v.s. spoelbak, inbouwapparatuur; gaskookplaat en afzuigkap
- trapkastruimte
- bijkeukenruimte met opstelling CV-ketel
- betegelde toiletruimte met closet en fonteintje
- betegelde badkamer met douchevoorziening
Algemeen: deze verdieping is relatief recent op enkele punten deels gemoderniseerd

Buiten:
- eigen, verharde oprit met poort
- vrijstaande, sterk verouderde garage (voormalige werkplaats) met openslaande deuren aan voor- en achterzijde
- zéér diepe, grotendeels verharde plaats/tuin met gunstige zonligging (zuid-westen)
- vrijstaande garage/berging aan achterzijde van het perceel
- achterom c.q. recht van weg achterzijde

1e verdieping:
- overloop met luik naar; vliering
- overloop met deur naar platdak
- slaapkamer aan de achterzijde
- slaapkamer voorzijde met bergruimte onder de dakschuinte

Algemeen:
- deze hoekwoning heeft een karaktervolle, oude gevel en maakt onderdeel uit van het 'beschermd stadsgezicht'
- hier is een ingrijpende verbouwing/modernisering noodzakelijk, vandaar de zeer gunstige prijsstelling van dit vastgoed
- er is een zéér diepe tuin met gunstige zonligging die nader aangelegd moet worden (thans vrijwel compleet verhard)
- hier is sprake van een bijzonder riant perceel van 386 m²
- deze woning beschikt over een eigen oprit + vrijstaande garage/werkplaats die sterk verouderd is
- aan de achterzijde van het diepe perceel is een extra garage/berging aanwezig
- de woning is ter hoogte van de begane grond enigszins, op enkele punten, gemoderniseerd
- er zijn een groot aantal kunststof kozijnen in de woning aanwezig
- er is sprake van een gunstige ligging nabij 'Winkelcentrum Wagnerplein' met allerhande voorzieningen zoals sport, winkels (waaronder supermarkten en speciaalzaken), bibliotheek etc.
- het bouwtechnisch inspectierapport ter vergroting van het inzicht in de bouwkundige staat is reeds voorhanden
- deze woning wordt 'as is, where is' verkocht, dit houdt in dat dit vastgoed wordt verkocht in de feitelijke staat en dat de koper geacht wordt goed onderzoek te doen naar alle eigenschappen. Ter ondersteuning hiervan is er reeds een bouwkundig rapport voorhanden, gemeentelijke bodeminformatie, uitgebreid beeldmateriaal e.d.

Kenmerken